■新登場!
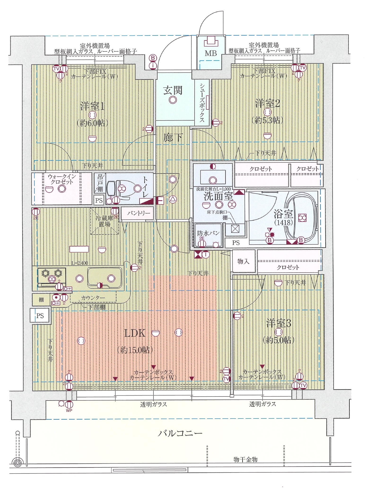
■南向き
■ワイドスパン設計
◆人気のパデシオン京都七条ミッドパークに新物件が登場!
人気の「パデシオン京都七条ミッドパーク」に新物件が登場です!新駅の設置や鉄道博物館、ホテル、中央市場の建て替えなど多種多様に発展が進んでいる京都七条エリア。この恵まれた立地に建つ人気のパデシオン京都七条ミッドパークの新物件は南向きで間口の広いワイドスパン設計の3LDKプランです。この好条件が揃ったお部屋をご自身の目でお確かめください。またパデシオン京都七条ミッドパークは毎月の管理費、修繕積立金、駐車場料金なども低料金でこちらもとても魅力です。お問い合わせお待ちしております。
#パデシオン京都七条ミッドパーク











